Pohraničí je z hlediska architektury velkou hádankou. Nejen jak, ale především co a zdali vůbec by se zde mělo něco stavět. Na co lze navazovat?
Sudety 21. století
V Sudetech je vše velice vzdálené. Minulost, budoucnost, práce, město. Člověk s dlouhodobou vizí je buďto podivín, anebo zachránce. Vzdálenost a odpoutanost však dnes (mnohem spíše než před pár desetiletími) mohou být velkou hodnotou, či dokonce komoditou.
Česko-polské pomezí u Bečkova
Místo se nachází za osadou Bečkov, cca 50 metrů od Česko-polské hranice. Krajina je nehostinná a drsná. Stojí zde polorozpadlá sudetská stodola, z níž se zachovaly pouze části obvodových zdí. Každá přibližně ve tvaru písmene L. Tyto zdi lemují veškeré naše pocity a úvahy o možnosti bydlení na místě a staly se východiskem pro náš návrh; respektive náš návrh jsme vsunuli mezi ně.
Chata v ruinách
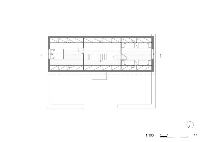
Polovina dům, polovina zahrada. Do zahrady se dostaneme těžkými kovovými vraty, umístěnými na ose domu. Za nimi je zahrada s jabloní, terasou a saunou. Podélná prkna chodníčku za vraty podtrhávají gesto: Vsunutí nového objektu mezi původní zdi. Větrací otvory ve zdech původní stodoly jsou malými okénky. Naproti vstupním dveřím je okno, k němuž vedou tři schody, a dá se skrz něj vstoupit na vyvýšenou přední terasu, jediné místo otevřené do volné krajiny. Stůl splývá s oknem, schodiště se prolíná s krbem. Místnosti se spojují v jediný celek. Dům se stává uzavřeným útočištěm.
Technologie stavby
Použité dřevo je masivní modřín bez povrchové úpravy. Vsunutá stavba je dřevěnou rámovou konstrukcí o půdorysu 5×15 m. Fragmenty původní stodoly jsou z cihly plné, na kterou je pro zajištění tuhosti vybetonován železobetonový věnec, o který se dřevěná rámová konstrukce stavby částečně opírá. Zbylé části stavby jsou založeny na železobetonových pasech. Střecha a klempířské prvky jsou titanzinkové. Použité dřevo je masivní modřín bez povrchové úpravy. Větrací otvory původní stodoly jsou zality epoxidovanou transparentní pryskyřicí.
Interiér
Uvnitř chaty je ocelové schodiště s krbem. Mléčné sklo tvořící příčky a nábytek. Lustr z babiččiny půdy. Ošuntělý koberec. Sklep mimo objem stavby, aby nenarušil statiku cihelných zdí.
Dům vs. Domov
Kdybych měl energeticky nulový dům, ve kterém by nebyl domov, je k ničemu. Kdybych měl stavbu postavenou z větru a klestí, ve které by nebyl domov, je k ničemu. Kdybych měl dům pevný a věčný jako skála a nebyl v něm domov, je k ničemu. Kdybych měl palác se všemi výdobytky doby a domov v něm nebyl, je k ničemu.
Bydlet znamená být naplněn v daném prostoru láskou, vše ostatní je nástrojem k dosažení tohoto duševního stavu. Je zjevné, že pouze materiální hodnoty k tomuto účelu nemohou dostačovat. A právě tvoření domova je prací architekta, nikoli projektanta.
Sudety jsou místem vykořenění. Vskutku obtížné, nikoli nemožné, nacházet lásku v sedimentech česko-německé nenávisti.













